Asking
$5,450,000
Type
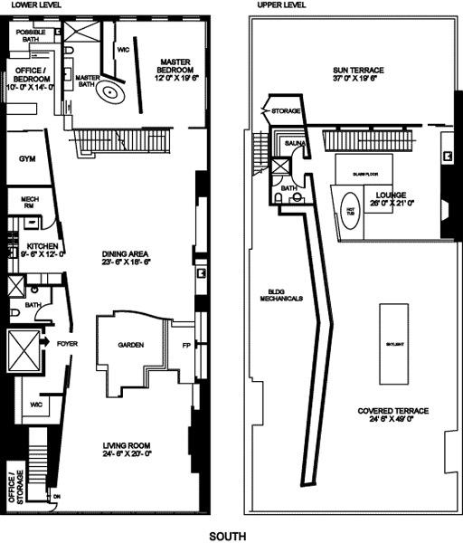
Condo
Beds
2
Baths
3.5
int SF
4,058 sf*
ext SF
2,400 sf*
PVI
24 %

Terrace Size
2,400 SF
Percent Value Increase (PVI)
24 %
Terrace Type
Direct Living
Living Level
Second Level
Direct Roof
Roof Access
Convenience
True Penthouse
Multiple Access
Multiple Levels
Gas
Water
Features
Summer Kitchen
Pool / Tub
Fireplace
Outdoor Shower
Media / TV
Pergola / Shade
Planters
Ownership
condo
Doorman
no
Neighborhood
Gramercy
Building Type
hi-rise
Elevators
1
Pets
–
Services
Doorman
Concierge
Elevator Operator
Super
Amenities
Gym
Pool
Garage
Laundry
Lounge
Children's Room
Storage & More
Storage
Bike Room
Cold Storage
Package Room
Parking





